Are you thinking about raising chickens in your backyard but don’t know where to start? Look no further! We have the perfect solution for you – free printable chicken coop plans! Building your own chicken coop can be a fun and rewarding project that will provide your feathered friends with a safe and comfortable home. With the right plans and materials, you can create a coop that fits your space and budget.
Get Clucking with These Free Plans
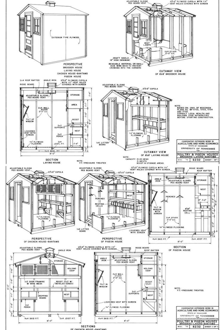
With these free printable chicken coop plans, you can design a coop that meets your specific needs and preferences. Whether you have a small backyard or a large farm, there are plans available for coops of all sizes. You can choose from a variety of designs, including traditional, modern, and rustic styles. These plans provide step-by-step instructions, material lists, and diagrams to help you build a sturdy and functional coop.
Building your own chicken coop allows you to customize it to suit your flock’s needs. You can add features such as nesting boxes, roosting bars, and ventilation windows to create a comfortable environment for your chickens. With the right plans, you can also incorporate eco-friendly elements such as solar-powered lighting and rainwater collection systems. Not only will you save money by building your own coop, but you will also have the satisfaction of knowing that you provided your chickens with a safe and cozy home.
Egg-citing Benefits of DIY Chicken Coops
One of the biggest benefits of building your own chicken coop is the cost savings. By using free printable plans, you can cut down on expensive pre-made coops and customize your design to fit your budget. Additionally, DIY coops allow you to use recycled materials, such as pallets and scrap wood, to reduce waste and create a more sustainable living space for your chickens.
Another advantage of DIY chicken coops is the sense of accomplishment that comes with completing a project from start to finish. Not only will you have a functional coop for your chickens, but you will also have gained valuable carpentry skills and knowledge about poultry care. Building a chicken coop can be a fun and educational experience for the whole family, as you work together to create a home for your feathered friends. So why wait? Download your free printable chicken coop plans today and get started on your egg-citing new project!



